San Antonio ADU Multifamily
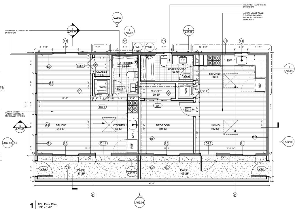
With Cottage ADU, we designed and transformed a garage into a functional and attractive accessory dwelling unit (ADU) to generate additional income for the family. The project resulted in two distinct units: a one-bedroom apartment and a studio.
The goal was to maximize the potential of the existing garage space by creating two separate rental units. This approach not only provides additional income for the family but also adds value to their property.

