Scandinavian ADU
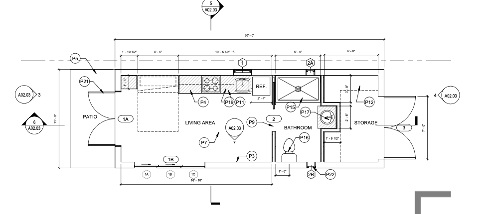
With Cottage ADU, we designed a small studio to add more usable space to the family's home. This project involved converting an existing garage, utilizing its footprint to create a functional and stylish living area. The design aesthetics are distinctive, featuring finished plywood interior walls and Reform green cabinetry that evokes Scandinavian design.
The goal was to transform the garage into a unique and practical studio that seamlessly integrates with the home's existing structure while providing additional space for the family's needs.

